Nicea - Piękny apartament w samym sercu miasta...
Ta nowa rezydencji, znajduje się zaledwie 3 minuty spacerem od Gare du Sud i ciesz się spokojem tego ekskluzywnego adresu w sercu dzielnicy Libération.
Tutaj miasto jest zanurzone w naturze, a codzienne życie staje się łagodniejsze. U podnóża Ogrodu Thiole i rzut kamieniem od przyszłego ogrodu botanicznego kościoła Sainte-Jeanne d'Arc, znajduje się nowa rezydencja, która harmonijnie wpasowuje się w otoczenie budynków mieszczańskich, Belle Époque, Art Deco i bardziej współczesnych.
Ekskluzywna rezydencja z zaledwie 15 apartamentami, od 2 do 5/6 pokojowych. W podziemiach znajdują się miejsca parkingowe i parkingi rowerowe, które zapewniają Państwu dużą wygodę w centrum miasta.
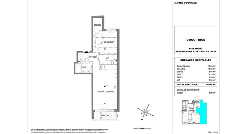
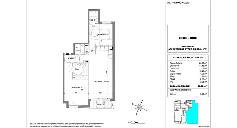
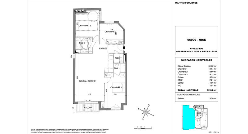
Mieszkania są jasne i przestronne, i otwierają się nabalkony, dzięki którym można cieszyć się łagodnym klimatem Nicei.
Wysokiej jakości wykończenia: płytki podłogowe 60x60 cm, rolety elektryczne, szafki w zabudowie, wyposażone łazienki, termodynamiczny podgrzewacz wody, indywidualna pompa ciepła...
Planowana dostawa: koniec 2025 / początek 2026.
Centrum miasta : 500 m
Plaża : 2 km
Lotnisko : 7 km
Dworzec : 750 m
Przystanek autobusowy : 200 m
Sklepy : 300 m
Pola golfowe : 20 km









