Nicea - Piękny apartament w samym serc miasta...
Ta nowa rezydencja cieszy się wyjątkową lokalizacją, kilka kroków od słynnego Placu Massena, 5 minut spacerem od Promenady des Anglais, morza i plaży.
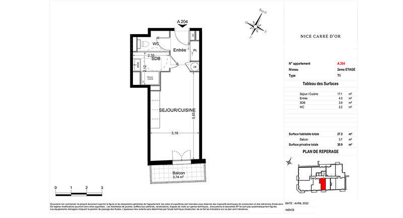
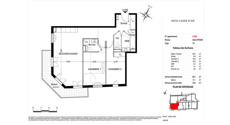
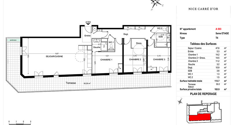
Wszystkie apartamenty (27 mieszkań, od kawalerek do czteropokojowych) otwierają się na balkony lub tarasy i oferują wysoki poziom wykończenia, współmierny do rzadkości i jakości lokalizacji.
Rezydencja posiada prywatne parkingi podziemne w samym sercu miasta.
Mocne strony
Cena
3 pokoje :
999 000 €
Parking / Garaż / Piwnica :
80.000€ / 85.000€ / x
Cechy charakterystyczne
Centrum miasta : 100 m
Plaża : 650 m
Lotnisko : 6 km
Dworzec : 1 km
Przystanek autobusowy : 100 m
Sklepy : 100 m
Pola golfowe : 20 km
Podobne nieruchomości










