Nice - Nydelig leilighet i hjertet av byen...
Denne nye residensen har unik beliggenhet. Kun et steinkast fra Place Massena, 5 minutters spasertur fra Promenade des Anglais.
Alle 27 leilighetene, fra studio til 4-roms, har balkonger eller terrasser og tilbyr høy grad av service som tilsvarer med den sjeldne og unike beliggenheten.
Residensen har private, sikrede parkeringsplasser i kjelleren i hjertet av Nice.
Fordeler
Pris
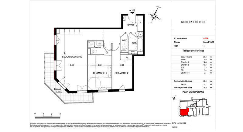
2 soverom :
899 000 €
Parkering / Garasje / Kjellerbod :
80.000€ / 85.000€ / x
Karakteristisk
Sentrum : 100 m
Strand : 650 m
Flyplass : 6 km
Togstasjon : 1 km
Buss : 100 m
Butikker : 100 m
Golfbaner : 20 km
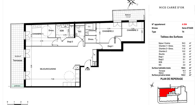
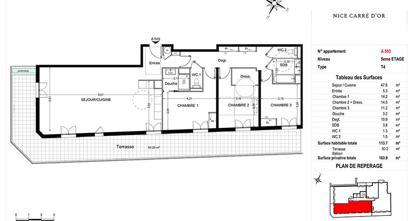
Lignende boliger











