Nicea - Apartament z tarasem w centrum miasta, blisko morza...
Ta nowa rezydencja położona jest w samym sercu tętniącej życiem dzielnicy, kilka kroków od portu, Promenade des Anglais i starej części Nicei.
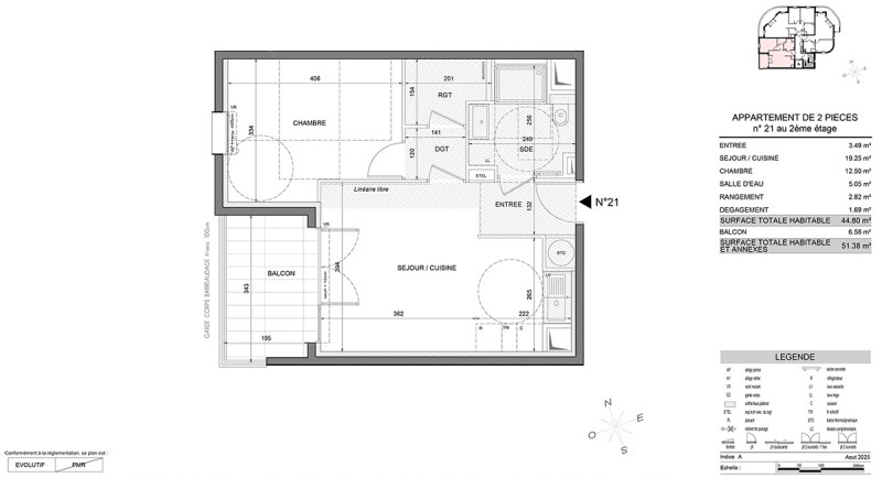
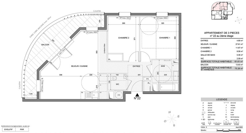
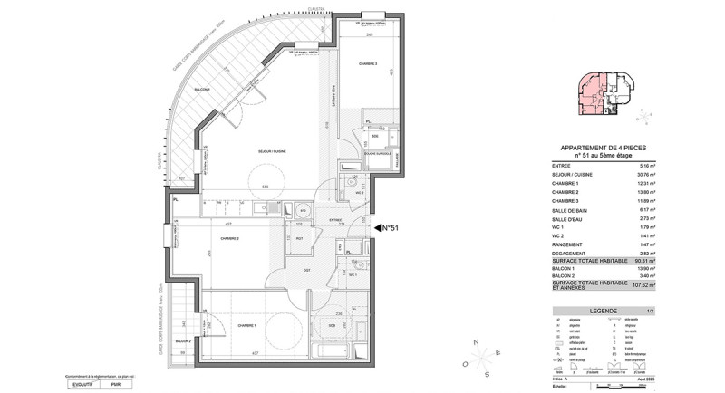
Rezydencja składa się zaledwie z 12 mieszkań od 2 do 4 pokoi i charakteryzuje się jasnością. Salony, często narożne, są nasłonecznione i łączą się z otwartymi kuchniami. Już w mieszkaniach 3-pokojowych układ pomieszczeń w naturalny sposób rozdziela strefę dzienną od sypialni, zapewniając spokój wszystkim mieszkańcom. W mieszkaniach 4-pokojowych główna sypialnia wyróżnia się prywatną łazienką i schowkami. Wszędzie duże okna zachęcają do wyjścia na balkon lub loggię.
Wyrafinowane wykończenia i współczesny komfort tworzą charakterystyczny styl, który łączy w sobie delikatność i trwałą elegancję.
Wyposażenie: - Klimatyzacja rewersyjna - Szafy wnękowe - Płytki 60x60 na podłodze i kafelki do wysokości ościeżnicy w łazienkach i łazienkach z prysznicem - Szafka pod umywalkę z lustrem i kinkietem LED, suszarka na ręczniki i parawan prysznicowy/wannowy, wiszące WC - Rolety z napędem elektrycznym - Okablowanie pod system domotyki - Bezpieczna przechowalnia rowerów, przechowalnia wózków dziecięcych - Bezpieczny parking
Przewidywany termin oddania do użytku: II kwartał 2028 r.
Informacje na temat zagrożeń naturalnych, na jakie narażona jest ta nieruchomość, są dostępne na stronie Géorisques: „www.georisques.gouv.fr”
Centrum miasta : 400 m
Plaża : 650 m
Lotnisko : 6 km
Dworzec : 1 km
Przystanek autobusowy : 100 m
Sklepy : 100 m
Pola golfowe : 20 km






