Nice - Vacker lägenhet i hjärtat av staden...
Endast 3 minuters promenad från Gare du Sud, finner ni detta nya residens och kan njuta av lugnet på denna exklusiva adress i hjärtat av Libération-distriktet. I denna omgivning får man ett behagligt liv. Vid foten av Jardin Thiole och ett stenkast från den framtida botaniska trädgården vid Sainte-Jeanne d'Arc-kyrkan, finns detta nya residens, som harmoniskt passar in i miljön av borgerliga byggnader, Belle Époque, Art Deco eller mer samtida.
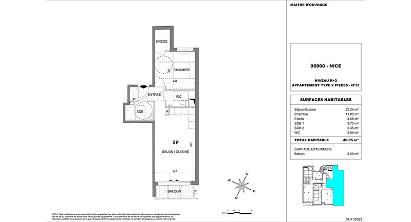
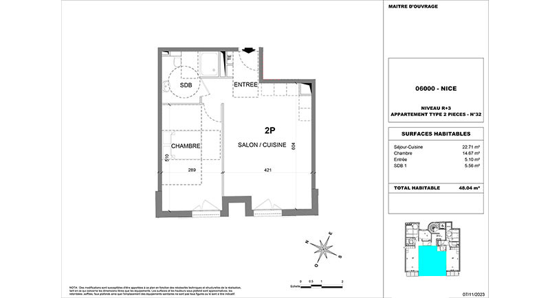
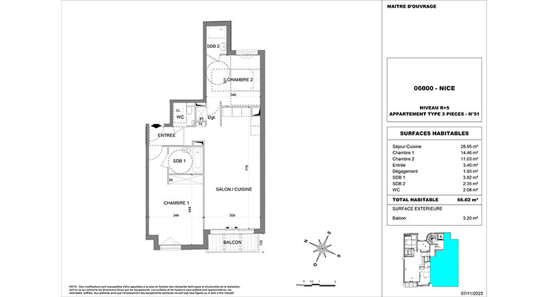
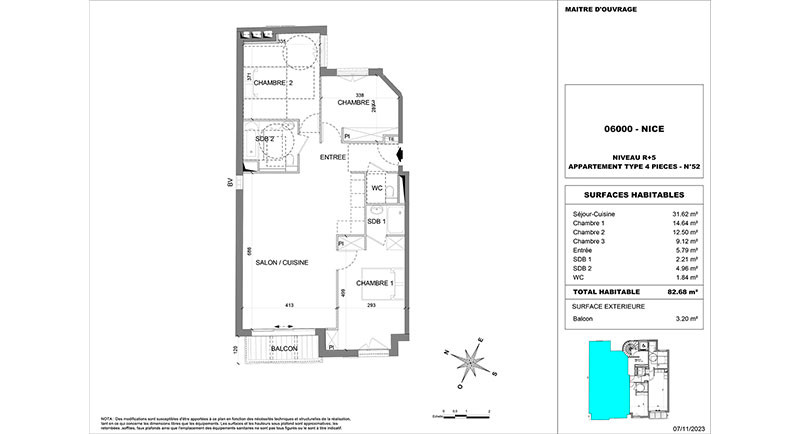
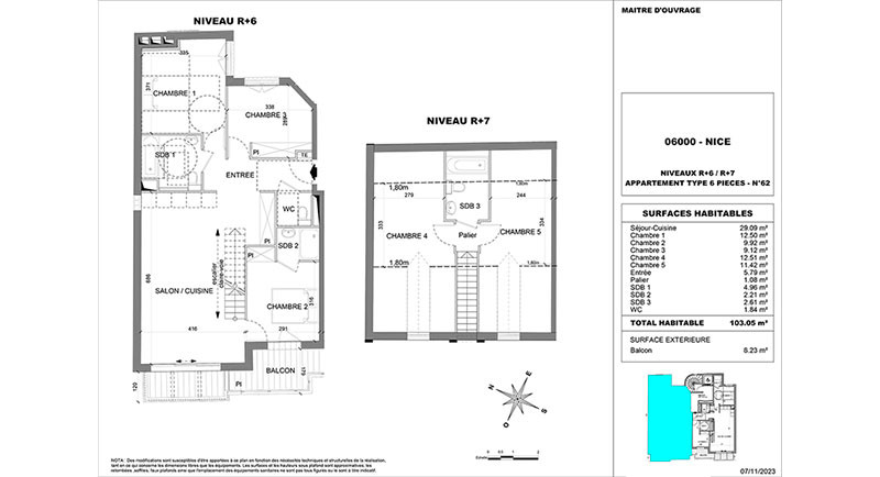
Detta är ett exklusivt residens med endast 15 lägenheter, från 2 till 5/6 rums duplex. I källaren erbjuds parkeringsplatser och plats för cyklar, vilket ger dig stor bekvämlighet i centrum.
Lägenheterna har stora ljusinsläpp och , som gör att du kan njuta av det milda klimatet i Nice.
Höga kvaliterer: 60x60 cm golvklinker, elektriska fönsterluckor, inbyggda skåp, utrustade badrum, termodynamisk varmvattenberedare, individuell värmepump...
Beräknad leverans: slutet av 2025 / början av 2026.
Avstånd till centrum i : 500 m
Avstånd till bad i : 2 km
Avstånd till flygplats : 7 km
Avstånd till tågstation i : 750 m
Busstation inom : 200 m
Affärer inom : 300 m
Golfbana inom : 20 km









